$$CAD DIGITIZATION CONVERSION
$$CAD Digitization & Conversion

$$CAD digitization or CAD conversion is a process in which existing manual architectural drawings such as paper, images, or PDF drawings are converted to CAD drawings. We work on CAD conversion projects for architectural services of a building of various sizes and complexity to create accurate CAD drawings. Our CAD drafters are skilled at converting scan based data to usable and editable CAD designs.

$$We Offer the following CAD Conversion Services
$$Paper to CAD

$$Design Presentation provides Paper to CAD conversion support for a wide range of clients, including architects, contractors, engineers and real estate developers. We work with hundreds of reprographic firms around the world, who scan paper drawings to convert them into raster images. Our repro partners can convert your paper drawings into scans, which we then vectorize into CAD files. Paper to CAD conversion services, or paper2cad services, involve two steps: scanning and vectorizing. Our repro partners do the scanning, and we convert raster images into fully editable CAD files. We manually redraw the scanned image, thereby converting your scanned paper drawings into various CAD formats (including dwg, dxf, dgn, etc.). By working with our repro partners, we can support all of your Paper to CAD conversion needs

$$Our Portfolio Paper to CAD conversion sample
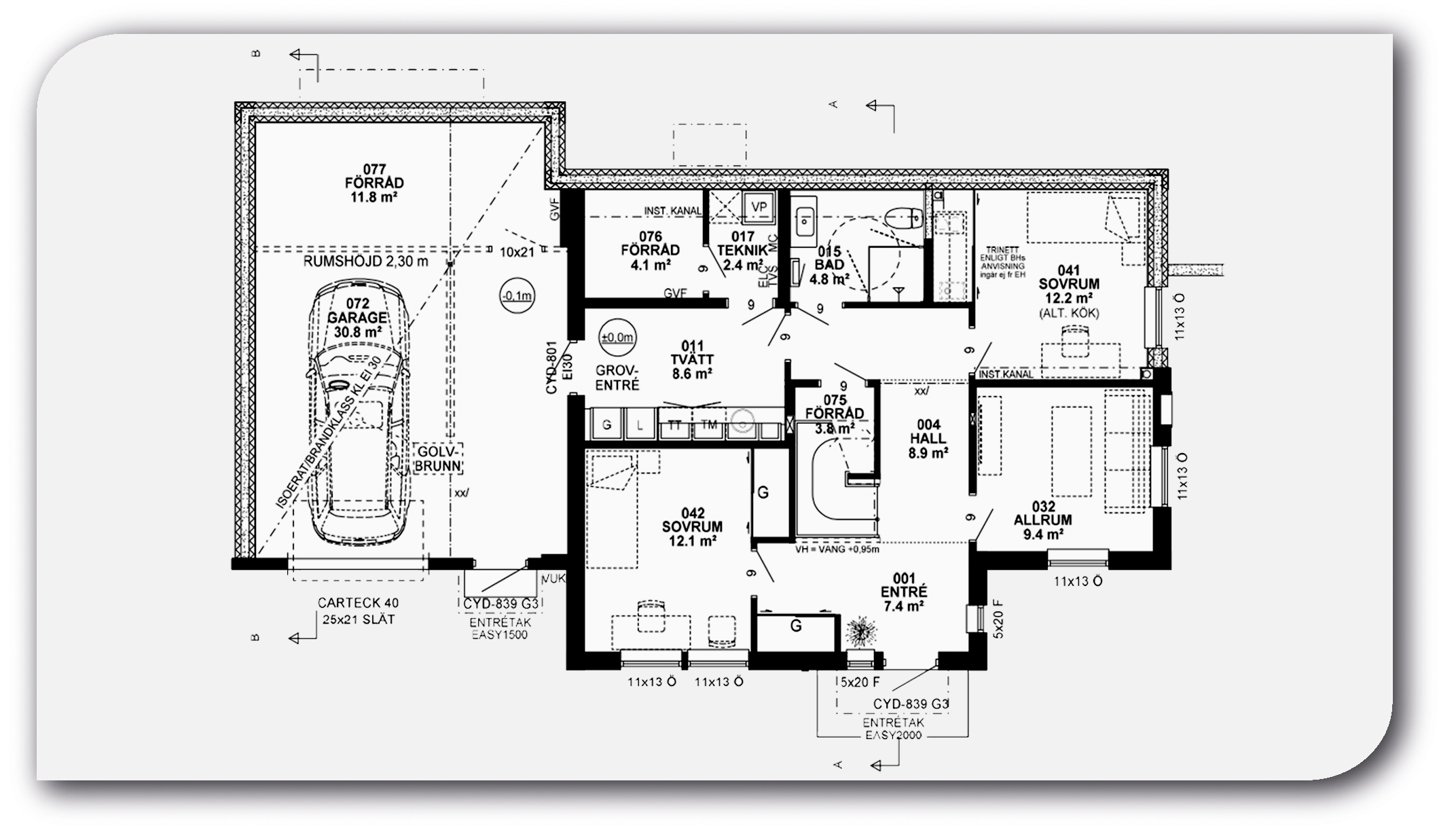
$$Image to CAD

$$ Image to CAD conversion is the process of converting images into CAD format. The images can be raster (jpg, png, tiff). We start with a blank document and re-create a vectorized output using AutoCAD (DWG, DXF)

$$Why use raster to CAD services?

$$Cost effective hand-drawn conversions

$$Quick turn around, even on large jobs

$$High accuracy (layers, text, line types, dimensions, hatch patterns, symbols, blocks, title blocks)

$$Output is in a fully editable vector format

$$Special pricing for new customers

$$Our Portfolio Image to CAD conversion sample
$$Pdf to CAD

$$PDF stands for Portable Document Format, a file format developed by Adobe to share documents regardless of device, operating system, or software. DWG stands for drawing, and is a file format associated with computer-aided design (CAD) programs. DWG files contain two and three-dimensional vector graphics, and are commonly used by architects, engineers, and drafters to develop design sketches.

$$Why use PDF to CAD services?

$$The final output is editable and will be in DWG, or DXF formats because we create the drawing as a new file

$$We can create as many layers as you require. We generate separate layers for dimensions, text, body, hidden lines, and centerlines, etc.We could also use your standards or reference drawings for drafting the AutoCAD files

$$Text is separated and has its own layer and is recognizable as text.

$$Dimensions are intact and are shown by a separate layer.

$$We use blocks for different entities (like doors, windows, electrical fixtures, plumbing fixtures, furniture, etc.).

$$We provide easy solutions for PDF file conversions that include converting legacy drawings and computer-aided drawings to updated CAD formats.

$$Our Portfolio Paper to CAD conversion sample
$$Why Choose 3DFloorplans Services?

$$Has been successfully delivering on time.

$$Experienced architectural design team.

$$Designers to customize client's individual requirements.

$$Affordable pricing.